
3,131 SqFt
3,131 SqFt
Key Details
Property Type Commercial
Sub Type Office
Listing Status Active
Purchase Type For Sale
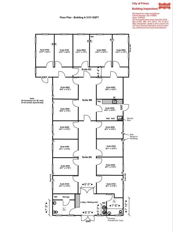
Square Footage 3,131 sqft
Subdivision Frisco Original Donation
MLS Listing ID 20701326
Total Fin. Sqft 3131
Year Built 1987
Annual Tax Amount $4,648
Lot Size 7,492 Sqft
Acres 0.172
Property Sub-Type Office
Property Description
All new reconstruction of building ,Interior, HVAC, Electrical, Plumbing and ADA restrooms, Update doors, trims and windows, Cosmetics – Flooring, Painting, Electric and Plumbing fixtures, door knobs;
Exterior, New concrete, sidewalks, bicycle parking and car parking as per approved site plan from the City of Frisco.
Location
State TX
County Collin
Zoning OTC
Direction From Dallas North tollway road need to go towards east on the main street, From main st take right towards the 5th street and from 5th street need to take left on Ash.Property is on the first left .
Interior
Heating Central
Cooling Central Air
Flooring Ceramic Tile, Luxury Vinyl Plank, Tile
Heat Source Central
Exterior
Utilities Available City Sewer, City Water
Roof Type Composition
Garage No
Building
Lot Description Corner Lot
Foundation Pillar/Post/Pier, Slab
Structure Type Brick
Others
Acceptable Financing 1031 Exchange, Cash, Lease Option, Lease Purchase
Listing Terms 1031 Exchange, Cash, Lease Option, Lease Purchase
Virtual Tour https://www.propertypanorama.com/instaview/ntreis/20701326


Find out why customers are choosing LPT Realty to meet their real estate needs
Learn More About LPT Realty







